Hoppa till huvudinnehåll
Mina sidor
Sök
Sök
Uthyrning
Hyresgäst
Våra områden
Byggprojekt
Karriär
Om oss
Start
Byggprojekt
Renovering
Bagartorp höghus
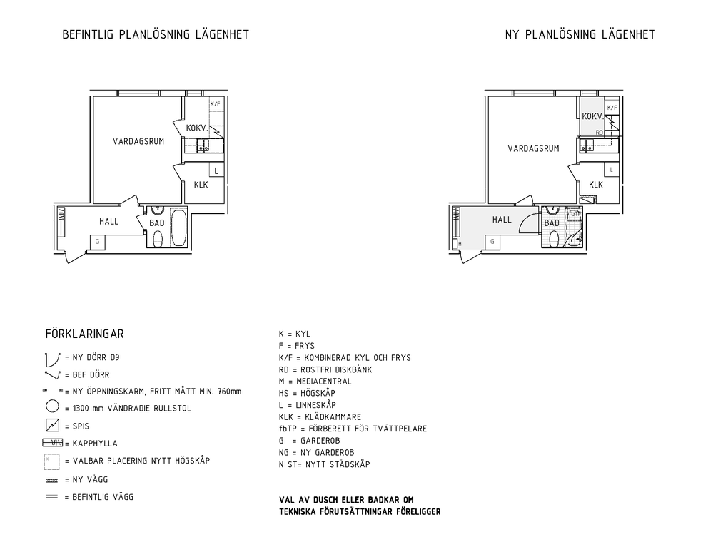
Ritningar och bilder för de vanligaste lägenhetstyperna
Typlägenhet 1 RoKv (Bagartorpsringen 58, 70 och 78)
Typlägenhet 1 RoKv (Bagartorpsringen 58, 70 och 78)
Stäng